Reference FlexiDomy

RD Damníkov

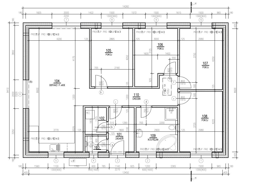
Základní informace

  • Dispozice
    5+kk
  • Zastavěná plocha
    -
  • Celková užitná plocha
    110,15 m2
  • Stav
    Připravujeme

Galerie

Máte otázky? Pojďme se potkat!

Rádi vám pomůžeme s realizací vašeho vysněného domova.
Domluvte si nezávaznou konzultaci.