Reference FlexiDomy

RD Drahotuše

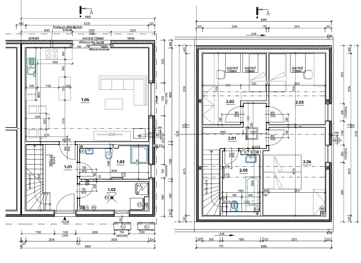
Základní informace

  • Dispozice
    4+kk
  • Zastavěná plocha
    -
  • Celková užitná plocha
    96,63 m2
  • Stav
    Připravujeme

Galerie

Máte otázky? Pojďme se potkat!

Rádi vám pomůžeme s realizací vašeho vysněného domova.
Domluvte si nezávaznou konzultaci.