RD Horní Rapotice

Projektové informace

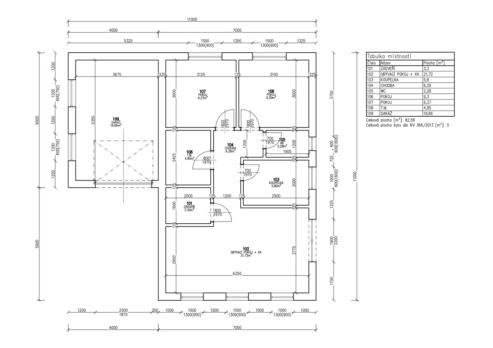
  • Dispozice: 3+kk +G
  • Zastavěná plocha: m2
  • Celková užitná plocha: 82,58 m2
RD Horní Rapotice
RD Horní Rapotice
RD Horní Rapotice
RD Horní Rapotice
RD Horní Rapotice
RD Horní Rapotice
RD Horní Rapotice
RD Horní Rapotice
RD Horní Rapotice
RD Horní Rapotice
RD Horní Rapotice
RD Horní Rapotice
RD Horní Rapotice
RD Horní Rapotice
RD Horní Rapotice