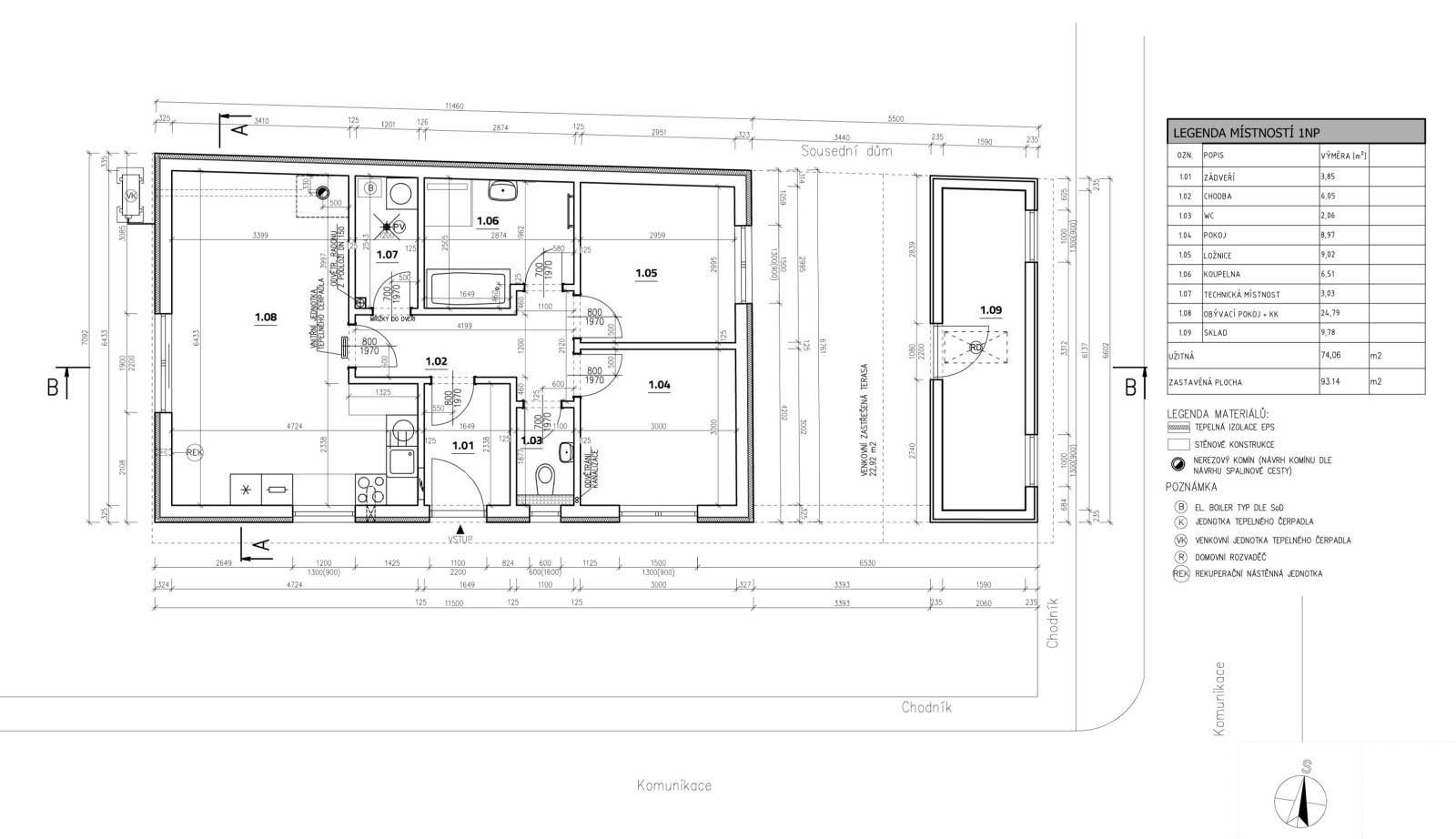
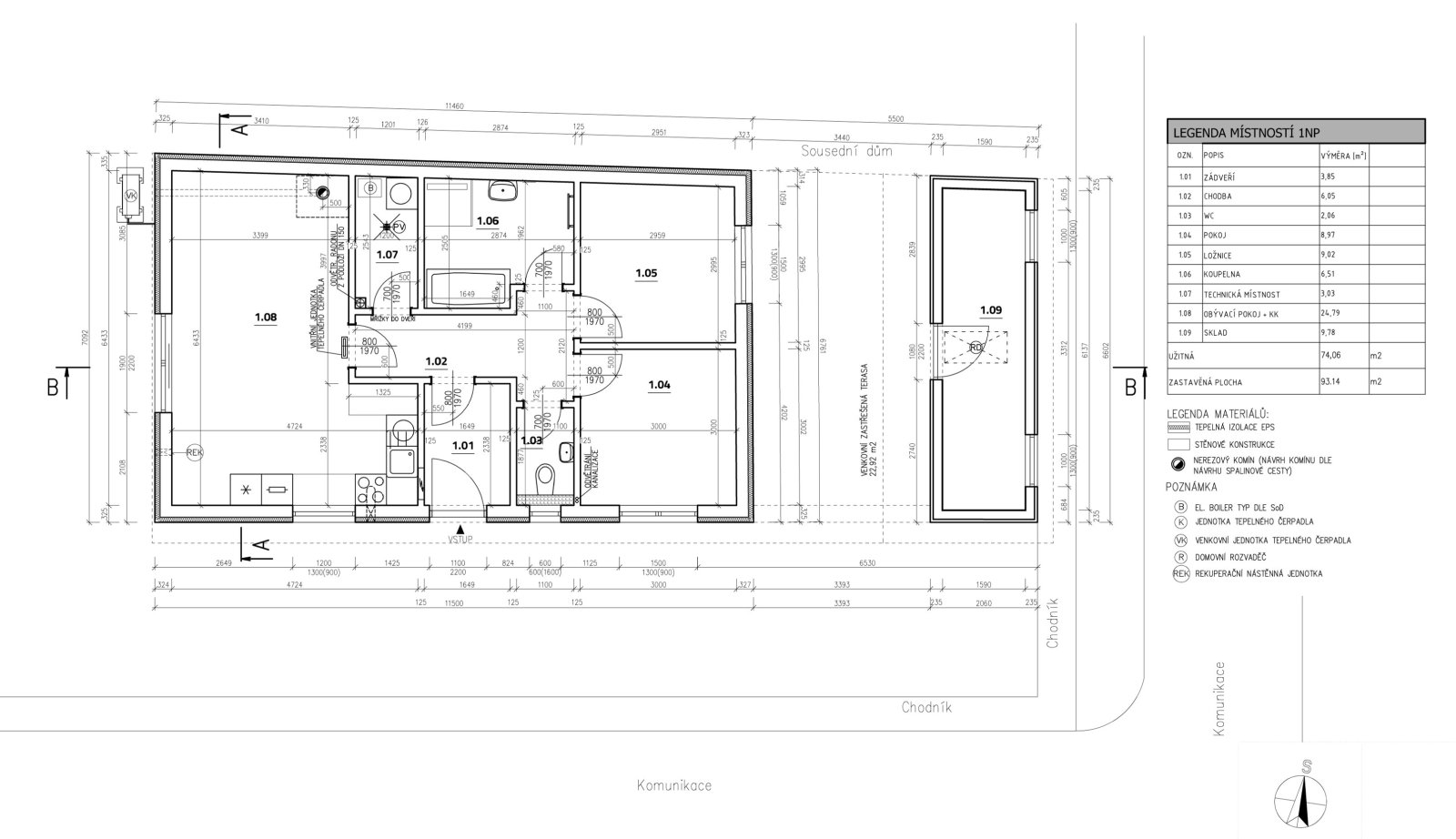
RD Nové Sady u Olomouce

Projektové informace

  • Dispozice: 4+kk
  • Zastavěná plocha: 48,78 m2
  • Celková užitná plocha: 76,32 m2
RD Nové Sady u Olomouce
RD Nové Sady u Olomouce
RD Nové Sady u Olomouce
RD Nové Sady u Olomouce
RD Nové Sady u Olomouce
RD Nové Sady u Olomouce
RD Nové Sady u Olomouce
RD Nové Sady u Olomouce
RD Nové Sady u Olomouce
RD Nové Sady u Olomouce
RD Nové Sady u Olomouce