RD Radíkov

Projektové informace

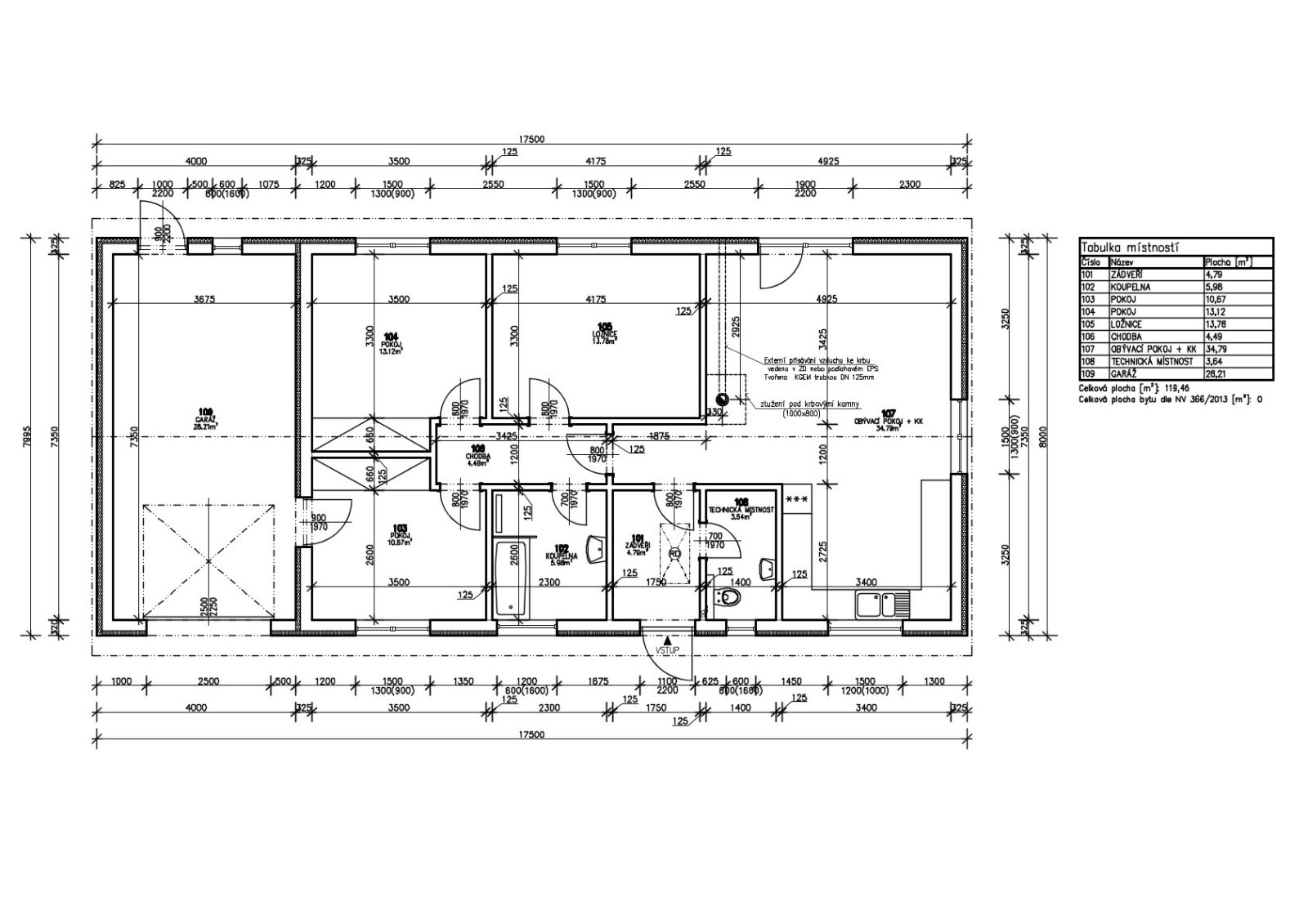
  • Dispozice: 4+kk +G
  • Zastavěná plocha: m2
  • Celková užitná plocha: 119,46 m2
RD Radíkov
RD Radíkov
RD Radíkov
RD Radíkov
RD Radíkov
RD Radíkov
RD Radíkov
RD Radíkov
RD Radíkov
RD Radíkov
RD Radíkov
RD Radíkov
RD Radíkov
RD Radíkov
RD Radíkov
RD Radíkov
RD Radíkov
RD Radíkov
RD Radíkov
RD Radíkov
RD Radíkov
RD Radíkov
RD Radíkov
RD Radíkov